MODERN OFFICE SPACE
NEW DESIGN
FOR NEW WORK
New ways of working come naturally in BeOne. Whether it’s analogue teamwork in the office or synchronous digital collaborative remote working. Ideas, projects and visions draw their energy from the vibrant surroundings. The offices in BeOne are an ideal reflection of the inspiring and high-quality environment. The high degree of amenity value and flexible range of rental units will ensure streamlined processes and a motivational team spirit. From uplifting cellular offices and inspiring New Work areas to open-plan solutions - every tenant will find their perfect space in BeOne. And all this in a truly feel-good ambience.

Ground floor
Divisible office space: 214 sq m | 164 sq m
Total area: 378 sq m

1st floor
Divisible office space: 550 sq m
Total area: 1,040 sq m

1st floor
Divisible office space: 490 sq m
Total area: 1,040sq m

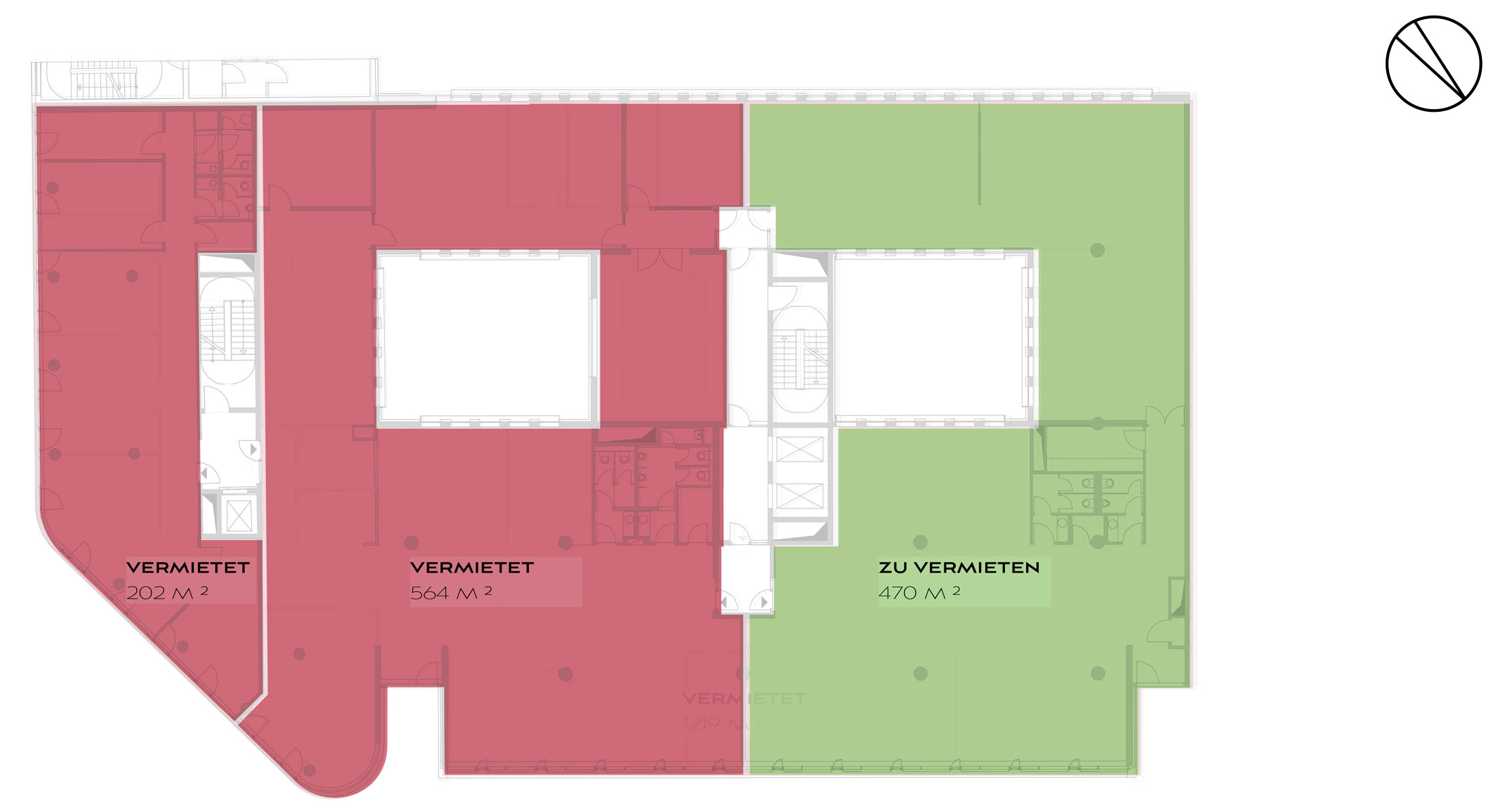
2nd floor
Divisible office space: 564 sq m
Total area: 1,034 sq m

3rd floor
Divisible office space: 470 sq m
Total area: 1,034 sq m

5th floor
Office space: 694 sq m

6th floor
Divisible office space: 250 sq m
Total area: 781 sq m

6th floor
Divisible office space: 531 sq m
Total area: 781 sq m
Existing fit-out
- Opening windows with efficient sun protection
- Mechanical air-conditioning with individually controlled peak load cooling for a pleasant room climate
- Clear ceiling heights: 3.00 m – 4.00 m
- Digital infrastructure with cabling via raised and cavity floors
- Contemporary designer pantry kitchens
- Barrier-free access
- Modern lifts

![[Translate to English:] Existing furnishing](/fileadmin/user_upload/beone_menschen.jpg)