MODERNE BÜROFLÄCHEN
NEUE GESTALTUNG
FÜR NEW WORK
Im BeOne findet neues Arbeiten sich ganz von selbst. Egal ob analoge Produktivität im Team oder synchrones digitales Zusammenarbeiten vom Homeoffice aus. Ideen, Projekte und Visionen schöpfen Energie aus der pulsierenden Umgebung. Die BeOne-Büroflächen spiegeln das inspirierende urbane Umfeld perfekt wider. Eine hohe Aufenthaltsqualität und ein flexibles Raumangebot sorgen für effiziente Prozesse und einen motivierenden Teamspirit. Ganz gleich ob inspirierende Einzelbüros, motivierende New-Work-Flächen oder Open Spaces – im BeOne findet jeder Mieter seinen perfekten Platz. Und das alles in einer Atmosphäre zum Wohlfühlen.

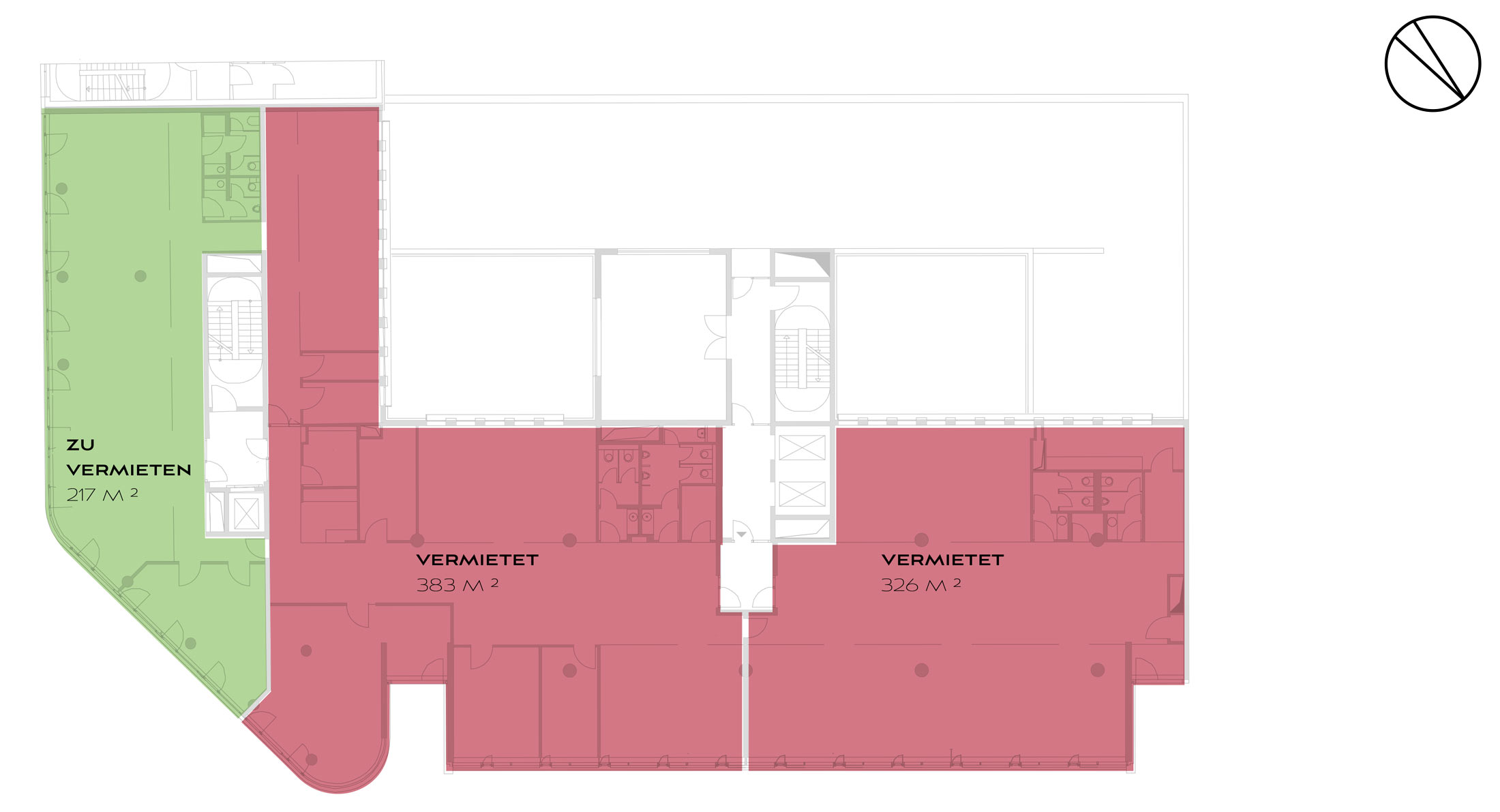
Erdgeschoss
Fläche Büro teilbar: 214 m2 | 164 m2
Gesamtfläche: 378 m2

1. Obergeschoss
Fläche Büro teilbar: 550 m2
Gesamtfläche: 1.040 m2

1. Obergeschoss
Fläche Büro teilbar: 490 m2
Gesamtfläche: 1.040 m2

3. Obergeschoss
Fläche Büro teilbar: 564 m2
Gesamtfläche: 1.034 m2

3. Obergeschoss
Fläche Büro teilbar: 470 m2
Gesamtfläche: 1.034 m2

4. Obergeschoss
Fläche Büro teilbar: xxx m2
Gesamtfläche: xxx m2

4. Obergeschoss
Fläche Büro teilbar: xxx m2
Gesamtfläche: xxx m2

5. Obergeschoss
Fläche Büro: 694 m2

6. Obergeschoss
Fläche Büro teilbar: 250 m2
Gesamtfläche: 781 m2

6. Obergeschoss
Fläche Büro teilbar: 531 m2
Gesamtfläche: 781 m2
Vorhandene Ausstattung
- Öffenbare Fenster mit effizientem Sonnenschutz
- Mechanische Klimaanlage mit individuell regulierbarer Spitzenlastkühlung – für ein angenehmes Raumklima
- Lichte Raumhöhe: 3,00–4,00 m
- Digitale Infrastruktur mit Kabelführung über Doppel- und Hohlraumböden
- Moderne Küchen mit hohem Designanspruch
- Barrierefreiheit
- Moderne Aufzugsanlagen


